Moderne 3-Zimmer-Wohnung mit großem Balkon – Erstbezug 2024 – Anlegerobjekt in Arnoldstein
Wohnung - Kauf - 9601 Arnoldstein, Höhenreinerstraße
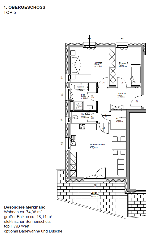
Zum Verkauf steht eine hochwertig ausgeführte 3-Zimmer-Wohnung im 1. Obergeschoss einer 2024 fertiggestellten Wohnanlage.
Die Wohnung überzeugt durch eine durchdachte Raumaufteilung sowie helle, freundliche Räume und eignet sich ideal als attraktive Kapitalanlage.
Raumaufteilung laut Plan:
- Wohnküche (ca. 27,3 m²)
Großzügiger, offen gestalteter Wohn- und Essbereich mit integrierter Küche und direktem Zugang zum Balkon. - Zimmer 1 (ca. 14,5 m²)
Ideal als Schlafzimmer mit ausreichend Platz für Schrank und Doppelbett. - Zimmer 2 (ca. 10,4 m²)
Perfekt als Kinderzimmer, Büro oder Gästezimmer nutzbar. - Badezimmer (ca. 5,6 m²)
Modern ausgestattet mit Badewanne, Dusche und Fenster – Tageslicht sorgt für angenehme Atmosphäre. - Separates WC (ca. 2,6 m²)
Mit Handwaschbecken und Fenster. - Abstellraum (ca. 2,8 m²)
Praktischer Stauraum innerhalb der Wohnung. - Vorraum (ca. 10,2 m²)
Großzügiger Eingangsbereich mit guter Stellfläche. - Großer Balkon (ca. 18,1 m²)
Viel Platz für Sitzbereich und Pflanzen – ideal zum Entspannen.
Ausstattung & Highlights:
- Fertigstellung 2024
- Moderne Bauweise
- Elektrischer Sonnenschutz
- Sehr guter HWB-Wert
- Helle Räume durch großzügige Fensterflächen
- Zeitgemäße Grundrissgestaltung
Optional können ein Carport zum Kaufpreis von € 13.900,- oder ein KFZ-Außenstellplatz zum Kaufpreis von € 8.500,- erworben werden.
Investment-Information:
Die Wohnung ist bereits vermietet und kann derzeit nicht selbst bezogen werden.
Sie eignet sich daher ideal für Investoren oder als nachhaltige Geldanlage mit laufenden Mieteinnahmen.
Lagebeschreibung
Die Wohnanlage befindet sich in einer beliebten und ruhigen Wohngegend im südlichen Kärnten.
Arnoldstein überzeugt durch seine naturnahe Lage in unmittelbarer Nähe zu Italien und Slowenien und bietet eine hohe Lebensqualität zwischen Bergen, Wäldern und Seen. Die Umgebung ist geprägt von viel Grün, gepflegten Wohnhäusern und einer angenehmen Nachbarschaft.
Infrastruktur & Nahversorgung
- Einkaufsmöglichkeiten für den täglichen Bedarf in kurzer Distanz
- Ärzte, Apotheke und weitere Versorgungseinrichtungen im Ort
- Kindergarten und Schule gut erreichbar
- Gastronomie und regionale Betriebe in der Umgebung
Verkehrsanbindung
- Gute Anbindung an die A2 Südautobahn
- Villach ist in wenigen Fahrminuten erreichbar
- Grenznähe zu Italien und Slowenien – ideal auch für grenzüberschreitend Berufstätige
Freizeit & Erholung
Die Region bietet zahlreiche Freizeitmöglichkeiten:
- Wandern, Radfahren und Naturerlebnisse direkt vor der Haustüre
- Nähe zu den Kärntner Seen
- Skigebiete und Wintersportmöglichkeiten in der Umgebung
Die Kombination aus ruhiger Wohnlage, guter Erreichbarkeit und hoher Freizeitqualität macht diesen Standort sowohl für Mieter als auch für Investoren besonders attraktiv.
- Fläche: 74,38 m²
- Zimmer: 3
- Schlafzimmer: 2
- Badezimmer: 1
- Heizung: Fußbodenheizung
- Böden: 1
- Adresse: 9601 Arnoldstein, Höhenreinerstraße
- Gesamtkosten (inkl. MwSt): € 299.000,00
- Keller
